Dom mieszkalny jest wykonany z drewna świerkowego KLASY C24, sezonowanego , suszonego, heblowanego czterostronnie i impregnowanego przeciw grzybicznie oraz ogniu. Budowany jest w technologii szkieletu drewnianego, którego konstrukcja jest opatentowana i wykonywana tylko przez naszą firmę już od 40 lat . Konstrukcja ze względu na liczne połączenia ciesielskie i rozwiązania konstrukcyjne stanowi bryłę o bardzo mocnej i stabilnej konstrukcji.
Każdy projekt możemy dowolnie powiększać oraz zmniejszać , zrobić odbicie lustrzane, przesuwać ściany , okna drzwi, zgodnie z Państwa potrzebami .
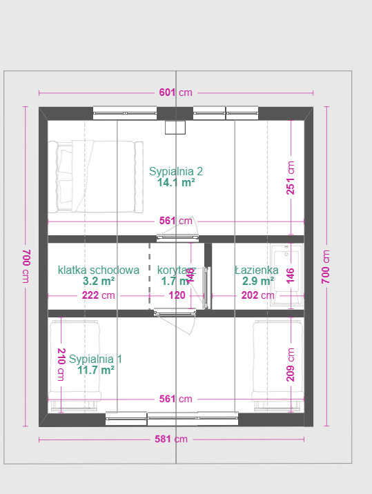
Każdy dom kalkulowany jest po obrysie ścian zewnętrznych .
Wszelkie pergole , zadaszenia , wiaty , balkony są kalkulowane odrębnie .
Firma dodatkowo może wykonać fundamenty pod każdy dom
RZUT PARTER
RZUT PODDASZE
Aby wydrukować - skorzystaj z opcji "Drukuj" w przeglądarce i zapisz do PDF, lub skorzystaj ze skrótu "CTRL" + " P".
Model domu:
VIVA Górska 84m2
Cena brutto:
Parametry techniczne:
Metraż budynku
84 m2
Metraż budynku wraz z tarasem
Wymiary budynku przy podstawie
6m x 7 m m
Wysokość ścianki kolankowej poddasza
1,3 m
Wymiary budynku przy podstawie bez tarasu
Parter: pow. budynku
42 m2
Pow. taras zadaszony
Wymiary poddasza
6 m x 7 m m
Poddasze: pow. budynku
42 m2
Dach kąt nachylenia
35-40 o
Wysokość budynku
6,5-7,5 m
Garaż
Wiata samochodowa
Balkon poddasza
Pergola - bez podłogi tarasowej
Pergola - z podłogą tarasową
Zadaszenie tarasu - bez podłogi tarasową
Zadaszenie tarasu - z podłogą tarasową
Podłoga tarasowa bez zadaszenia
Skonfiguruj swój dom:
Wybierz, aby zobaczyć cenę BRUTTO :
Czy Twoja budowa znajduje się do 50 km od poniższego adresu ?
Domy mieszkalne
od adresu 34-322 Rychwałd
Domy letnie oraz gospodarcze
od adresu 34-322 Rychwałd
od adresu 21-100 Lubartów
Budowa zawiera : dowóz materiałów , dojazd ekipy montującej oraz jej pobyt na budowie
Ważne!
Stawka VAT uzależniona jest od formy zgłoszenia budynku.
1. Jeśli posiadasz zgłoszenie / pozwolenie na budowę na dom mieszkalny stawka VAT 8%
1. Jeśli posiadasz zgłoszenie / pozwolenie na budowę na budynek letni, gospodarczy lub inny stawka VAT 23%
Obsługujemy pliki cookies. Jeśli uważasz, że to jest ok, po prostu kliknij "Akceptuj wszystko". Możesz też wybrać, jakie chcesz ciasteczka, klikając "Ustawienia".